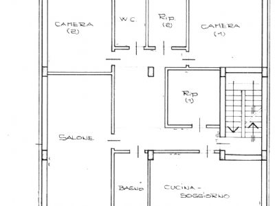
Home Services Europe propone in vendita a Misilmeri zona san Giuseppe Appartamento posto al 2° piano di 170 mq circa, composto da ingresso, cucina abitabile, 1 servizio con doccia, 1 servizio da definire, ripostiglio, salone pari a 2 vani, 2 camere da letto, camerino. 2 esposizioni, 2 balconi.
Posto al 3° piano Appartamento di 170 mq circa stessa suddivisione del 2° piano, allo stato grezzo. Prezzo richiesta € 70.000. Codice Annuncio 027
SEGUICI ANCHE SU INSTAGRAM https://instagram.com/homeserviceseurope?igshid=bdxasnxcjxxf Per ricevere comodamente offerte e aggiornamenti immobiliare Vi invitiamo a mettere like Alla nostra pagina facebook Home Services Europe o iscriversi al gruppo HOME SERVICES EUROPE MISILMERI Per maggiori informazioni vienici a trovare in sede a Misilmeri in Piazza comitato 1860 n° 29. Oppure puoi contattare lo 091.5071075 o il 328.1937020. Ci occupiamo anche delle seguenti zone: Misilmeri, Villabate, Portella di mare, Ficarazzi, Bagheria, Bolognetta, Marineo, Palermo.














