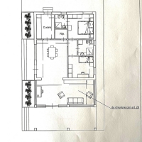
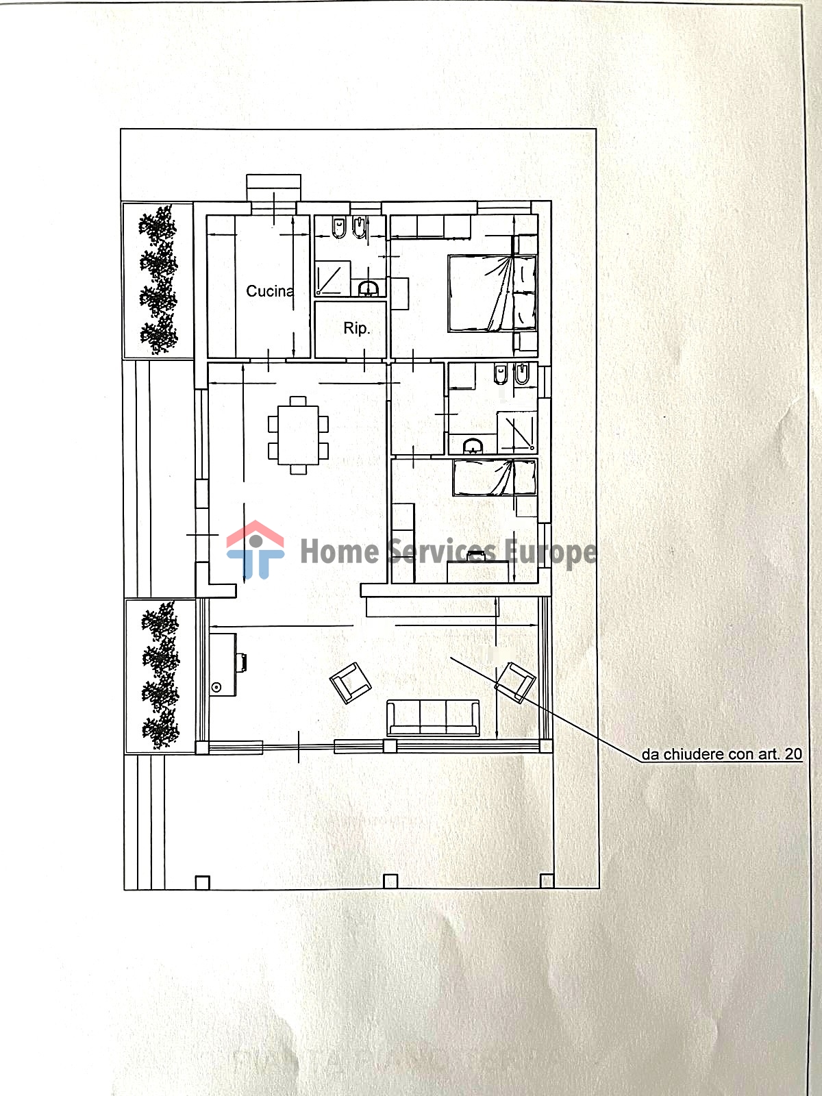
Home Services Europe propone in vendita a Misilmeri Terreno con progetto approvato per la realizzazione di 2 villette di 60 mq ciascuna piu 20 mq di veranda da poter chiudere e 20 mq di portico, 3.000 mq di terreno per ciascuna villetta.
Terreno con progetto approvato € 100.000,
Terreno con struttura € 150.000,
Villa (con 3.000 mq di Terreno) Finita chiavi in mano €250.000
SEGUICI ANCHE SU INSTAGRAM https://instagram.com/homeserviceseurope?igshid=bdxasnxcjxxf Per ricevere comodamente offerte e aggiornamenti immobiliare Vi invitiamo a mettere like Alla nostra pagina facebook Home Services Europe o iscriversi al gruppo HOME SERVICES EUROPE MISILMERI Per maggiori informazioni vienici a trovare in sede a Misilmeri in Piazza comitato 1860 n° 29. Oppure puoi contattare lo 091.5071075 o il 328.1937020. Ci occupiamo anche delle seguenti zone: Misilmeri, Villabate, Portella di mare, Ficarazzi, Bagheria, Bolognetta, Marineo, Palermo.












